|
|
 |
|
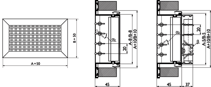
Решётки AДН, АДР
Решетки АДН, АДР предназначены для подачи и удаления воздуха в жилых, административных, общественных и производственных помещениях.
Двухрядные решетки АДН изготовлены из алюминия и снабжены индивидуально регулируемыми жалюзи для изменения направления и (или) характеристик приточной струи.
Для АДН, АДР угол наклона внутреннего ряда жалюзи – α2, угол наклона наружного ряда жалюзи - α1. Жалюзи устанавливаются в пластиковые втулки, которые облегчают их поворот при регулировании.
Решетки АДР оснащены регуляторами расхода воздуха. С целью удобства установки решетки могут дополнительно комплектоваться монтажной рамой.
Настенный монтаж производится с помощью пружинных фиксаторов. Потолочный монтаж рекомендуется производить с помощью самонарезающих винтов.
Решетки окрашиваются методом порошкового напыления в белый цвет (RAL 9016). При изготовлении продукции на заказ возможна окраска в любой цвет по каталогу RAL или текстурирование.
Минимальный размер решетки 100 x 100 мм, максимальный 1200 мм по одной из сторон, шаг 50 мм. При размере А (В) > 500 мм устанавливается перемычка для обеспечения прочности конструкции.
Технические характеристики решёток АДН, АДР при установке в системах приточной вентиляции
При раздаче воздуха через решётки возможно регулирование направления и (или) характеристик приточной струи с помощью изменения угла наклона жалюзи решёток. Далее в таблицах ”Данные” для подбора решёток АМН при подаче воздуха в помещение (α1=α2=0°) приведены рекомендуемые расходы воздуха L0 в зависимости от уровня генерируемого шума LA, соответствующие потери полного давления ∆Pполн, дальнобойности приточных струй l0,2 (Vx=0,2 м/с), l0,5 (Vx=0,5 м/с), l0,75 (Vx=0,75 м/с) для двух положений регулируемых жалюзи: α1=α2=0° и α1=α2=45°.
Данные для подбора воздуха решеток АДН, АДР при подаче воздуха в помещение, (α1=α2=0°)
|
Размеры* А х В, мм
|
Fo, м2
|
Lwa < 20дБ (А), ΔРп < 1 Па
|
Lwa=25дБ (А)
|
Lwa=35дБ (А)
|
Lwa ≤ 45дБ (А)
|
|
Lo, м3/ч
|
дально-бойность, м при Vx, м/с
|
Lo, м3/ч
|
дально-бойность, м при Vx, м/с
|
Lo, м3/ч
|
∆Рп, Па
|
дально-бойность, м при Vx, м/с
|
Lo, м3/ч
|
∆Рп, Па
|
дально-бойность, м при Vx, м/с
|
Lo, м3/ч
|
∆Рп, Па
|
дально-бойность, м при Vx, м/с
|
|
0,2
|
0,5
|
0,2
|
0,5
|
0,2
|
0,5
|
0,2
|
0,5
|
0,8
|
0,5
|
0,8
|
|
200х100
|
0,018
|
30
|
1,9
|
0,7
|
60
|
3,6
|
1,5
|
180
|
6
|
11
|
4,4
|
280
|
14
|
17
|
6,8
|
4,5
|
350
|
22
|
8,5
|
5,6
|
|
300х100
|
0,027
|
50
|
2,5
|
1,0
|
80
|
4
|
1,6
|
240
|
5
|
12
|
4,9
|
360
|
12
|
18
|
7,3
|
4,9
|
500
|
22
|
10
|
6,8
|
|
400х100
|
0,036
|
65
|
2,8
|
1,1
|
100
|
4,4
|
1,8
|
300
|
5
|
13
|
5,3
|
400
|
8
|
18
|
7
|
4,7
|
580
|
17
|
10
|
6,8
|
|
500х100
|
0,045
|
80
|
3,1
|
1,2
|
120
|
4,9
|
1,9
|
370
|
5
|
15
|
5,9
|
520
|
10
|
21
|
8,4
|
5,6
|
700
|
17
|
11
|
7,5
|
|
600х100
|
0,054
|
100
|
3,6
|
1,4
|
150
|
5,3
|
2,1
|
420
|
4
|
15
|
6,0
|
600
|
8
|
21
|
8,5
|
5,7
|
780
|
13
|
11
|
7,4
|
|
150х150
|
0,020
|
35
|
2,1
|
0,8
|
60
|
3,6
|
1,5
|
180
|
6
|
11
|
4,4
|
280
|
14
|
17
|
6,8
|
4,5
|
350
|
22
|
8,5
|
5,6
|
|
300х150
|
0,041
|
75
|
3,1
|
1,2
|
120
|
4,9
|
1,9
|
370
|
5
|
15
|
5,9
|
520
|
10
|
21
|
8,4
|
5,6
|
700
|
17
|
11
|
7,5
|
|
400х150
|
0,055
|
100
|
3,6
|
1,4
|
150
|
5,3
|
2,1
|
420
|
4
|
15
|
6,0
|
600
|
8
|
21
|
8,5
|
5,7
|
780
|
13
|
11
|
7,4
|
|
500х150
|
0,070
|
130
|
4,1
|
1,7
|
180
|
5,6
|
2,2
|
530
|
4
|
16
|
6,6
|
800
|
8
|
25
|
10
|
6,6
|
970
|
12
|
12
|
8,0
|
|
600х150
|
0,084
|
150
|
4,3
|
1,7
|
200
|
5,7
|
2,3
|
600
|
3
|
17
|
6,9
|
900
|
7
|
26
|
10
|
6,9
|
1130
|
12
|
13
|
8,7
|
|
700х150
|
0,098
|
170
|
4,5
|
1,8
|
240
|
6,4
|
2,6
|
700
|
3
|
19
|
7,4
|
1100
|
8
|
29
|
12
|
7,8
|
1300
|
11
|
14
|
9,2
|
|
800х150
|
0,112
|
200
|
5,0
|
2,0
|
250
|
6,2
|
2,5
|
740
|
3
|
19
|
7,4
|
1250
|
8
|
31
|
12
|
8,3
|
1500
|
12
|
15
|
10
|
|
200х200
|
0,036
|
70
|
3,1
|
1,2
|
100
|
4,4
|
1,8
|
300
|
5
|
13
|
5,3
|
400
|
8
|
18
|
7
|
4,7
|
580
|
17
|
10
|
6,8
|
|
300х200
|
0,055
|
100
|
3,6
|
1,4
|
150
|
5,3
|
2,1
|
420
|
4
|
15
|
6,0
|
600
|
8
|
21
|
8,5
|
5,7
|
780
|
13
|
11
|
7,4
|
|
400х200
|
0,074
|
130
|
4,0
|
1,6
|
180
|
5,6
|
2,2
|
530
|
4
|
16
|
6,6
|
800
|
8
|
25
|
10
|
6,6
|
970
|
12
|
12
|
8,0
|
|
500х200
|
0,093
|
160
|
4,4
|
1,8
|
220
|
6
|
2,4
|
650
|
3
|
18
|
7,0
|
1050
|
8
|
29
|
12
|
7,7
|
1250
|
12
|
14
|
9,1
|
|
600х200
|
0,112
|
200
|
5,0
|
2,0
|
250
|
6,2
|
2,5
|
740
|
3
|
19
|
7,4
|
1250
|
8
|
31
|
12
|
8,3
|
1500
|
12
|
15
|
10,0
|
|
700х200
|
0,131
|
230
|
5,3
|
2,1
|
270
|
6,2
|
2,5
|
820
|
3
|
19
|
7,6
|
1400
|
7
|
-
|
13
|
8,6
|
1550
|
9
|
14
|
9,5
|
|
800х200
|
0,150
|
270
|
5,8
|
2,3
|
300
|
6,5
|
2,6
|
900
|
2
|
19
|
7,8
|
1500
|
7
|
-
|
13
|
8,6
|
1650
|
8
|
14
|
9,5
|
|
1000х200
|
0,188
|
340
|
6,5
|
2,6
|
350
|
6,8
|
2,7
|
1100
|
2
|
21
|
8,5
|
1600
|
5
|
-
|
12
|
8,2
|
2000
|
7
|
15
|
10
|
|
300х300
|
0,084
|
150
|
4,3
|
1,7
|
200
|
5,7
|
2,3
|
600
|
3
|
17
|
6,9
|
900
|
7
|
26
|
10
|
6,9
|
1130
|
12
|
13
|
8,7
|
|
400х300
|
0,113
|
200
|
4,9
|
2
|
250
|
6,2
|
2,5
|
740
|
3
|
19
|
7,4
|
1250
|
8
|
-
|
12
|
8,3
|
1500
|
12
|
15
|
10
|
|
500х300
|
0,142
|
250
|
5,5
|
2,2
|
290
|
6,4
|
2,6
|
860
|
2
|
19
|
7,6
|
1450
|
7
|
-
|
13
|
8,6
|
1600
|
8
|
14
|
9,4
|
|
600х300
|
0,171
|
300
|
6,1
|
2,4
|
320
|
6,5
|
2,6
|
1000
|
2
|
20
|
8,0
|
1550
|
5
|
-
|
13
|
8,3
|
1800
|
7
|
15
|
9,7
|
|
700х300
|
0,200
|
350
|
6,6
|
2,6
|
400
|
7,4
|
3
|
1200
|
2
|
22
|
8,9
|
1700
|
5
|
-
|
13
|
8,4
|
2100
|
7
|
16
|
10
|
|
800х300
|
0,229
|
400
|
7,0
|
2,8
|
500
|
8,8
|
3,5
|
1300
|
2
|
23
|
9,1
|
1900
|
4
|
-
|
13
|
8,8
|
2200
|
6
|
15
|
10
|
|
1000х300
|
0,287
|
500
|
7,7
|
3,1
|
600
|
9,3
|
3,7
|
1500
|
2
|
23
|
9,3
|
2200
|
4
|
-
|
14
|
9,1
|
2800
|
6
|
17
|
12
|
|
*Решетки других размеров и цветов поставляются под заказ.
|
| При настилании струи на потолок ее дальнобойность увеличивается в 1,4 раза. При установке регулятора расхода в решетках АМР данные таблицы корректируются: | Значение коэффициента К и ΔLWА для решеток АДР при α1=α2=0° |
 |
|
% открытия
|
100%
|
50%
|
30%
|
|
регулятора расхода
|
β=0°
|
β=30°
|
β=60°
|
|
K
|
1,2
|
3,7
|
7,3
|
|
ΔLwa, дБ(А)
|
2
|
5
|
7
|
|
Приведенные в таблице данные дальнобойности струи не учитывают принятую схему воздухораздачи и избыточную температуру воздуха в струе. Для определения температуры и скорости воздуха в рабочей зоне необходимо пользоваться указаниями по расчету воздухораспределителей.
Данные для подбора воздуха решеток АДН, АДР при подаче воздуха в помещение, (α1=α2=45°)
|
Размеры* А х В, мм
|
Fo, м2
|
Lwa< 20дБ (А), Δ Рп < 1 Па
|
Lwa=20дБ (А)
|
Lwa=25дБ (А)
|
Lwa=35дБ (А)
|
Lwa=45дБ (А)
|
|
Lo, м3/ч
|
дально-бойность, м при Vx, м/с
|
Lo, м3/ч
|
∆Рп, Па
|
дально-бойность, м при Vx, м/с
|
Lo, м3/ч
|
∆Рп, Па
|
дально-бойность, м при Vx, м/с
|
Lo, м3/ч
|
∆Рп, Па
|
дально-бойность, м при Vx, м/с
|
Lo, м3/ч
|
∆Рп, Па
|
дально-бойность, м при Vx, м/с
|
|
0,2
|
0,5
|
0,2
|
0,5
|
0,2
|
0,5
|
0,2
|
0,5
|
0,75
|
0,5
|
0,8
|
|
200х100
|
0,018
|
30
|
1,1
|
0,4
|
60
|
3
|
2,2
|
0,9
|
140
|
15
|
5,1
|
2,0
|
240
|
45
|
8,7
|
3,5
|
2,3
|
450
|
158
|
6,5
|
4,4
|
|
300х100
|
0,027
|
50
|
1,5
|
0,6
|
80
|
3
|
2,4
|
1,0
|
210
|
17
|
6,4
|
2,6
|
300
|
35
|
9,1
|
3,7
|
2,4
|
570
|
126
|
6,9
|
4,6
|
|
400х100
|
0,036
|
65
|
1,7
|
0,7
|
100
|
2
|
2,6
|
1,1
|
260
|
15
|
6,9
|
2,7
|
350
|
27
|
9,2
|
3,7
|
2,5
|
700
|
107
|
7,4
|
4,9
|
|
500х100
|
0,045
|
80
|
1,9
|
0,7
|
120
|
2
|
2,9
|
1,2
|
330
|
17
|
8,0
|
3,2
|
450
|
31
|
11
|
4,3
|
2,9
|
800
|
98
|
7,7
|
5,1
|
|
600х100
|
0,054
|
100
|
2,1
|
0,9
|
150
|
2
|
3,2
|
1,3
|
380
|
13
|
8,1
|
3,2
|
550
|
28
|
12
|
4,7
|
3,1
|
1000
|
93
|
8,5
|
5,7
|
|
150х150
|
0,020
|
35
|
1,2
|
0,5
|
60
|
3
|
2,2
|
0,9
|
140
|
15
|
5,1
|
2,0
|
240
|
45
|
8,7
|
3,5
|
2,3
|
450
|
158
|
6,5
|
4,4
|
|
300х150
|
0,041
|
75
|
1,9
|
0,7
|
120
|
2
|
2,9
|
1,2
|
330
|
17
|
8,0
|
3,2
|
450
|
31
|
11
|
4,3
|
2,9
|
800
|
98
|
7,7
|
5,1
|
|
400х150
|
0,055
|
100
|
2,2
|
0,9
|
150
|
2
|
3,2
|
1,3
|
380
|
13
|
8,1
|
3,2
|
550
|
28
|
12
|
4,4
|
3,1
|
1000
|
93
|
8,5
|
5,7
|
|
500х150
|
0,070
|
130
|
2,5
|
1,0
|
180
|
2
|
3,3
|
1,3
|
480
|
13
|
8,9
|
3,6
|
750
|
31
|
14
|
5,6
|
3,7
|
1100
|
66
|
8,2
|
5,5
|
|
600х150
|
0,084
|
150
|
2,6
|
1,0
|
200
|
2
|
3,4
|
1,4
|
550
|
12
|
9,5
|
3,8
|
850
|
29
|
15
|
5,9
|
3,9
|
1200
|
58
|
8,3
|
5,5
|
|
700х150
|
0,098
|
170
|
2,7
|
1,1
|
240
|
2
|
3,8
|
1,5
|
650
|
12
|
10
|
4,1
|
1020
|
31
|
16
|
6,5
|
4,3
|
1330
|
52
|
8,5
|
5,7
|
|
800х150
|
0,112
|
200
|
3,0
|
1,2
|
250
|
1
|
3,7
|
1,5
|
700
|
11
|
11
|
4,2
|
1100
|
27
|
16
|
6,6
|
4,4
|
1400
|
44
|
8,4
|
5,6
|
|
200х200
|
0,036
|
70
|
1,8
|
0,7
|
100
|
2
|
2,6
|
1,1
|
260
|
15
|
6,9
|
2,7
|
350
|
27
|
9,2
|
3,7
|
2,5
|
700
|
107
|
7,4
|
4,9
|
|
300х200
|
0,055
|
100
|
2,2
|
0,9
|
150
|
2
|
3,2
|
1,3
|
380
|
13
|
8,1
|
3,2
|
550
|
28
|
12
|
4,7
|
3,1
|
1000
|
93
|
8,5
|
5,7
|
|
400х200
|
0,074
|
130
|
2,4
|
1,0
|
180
|
2
|
3,3
|
1,3
|
480
|
13
|
8,9
|
3,6
|
750
|
31
|
14
|
5,6
|
3,7
|
1100
|
66
|
8,2
|
5,5
|
|
500х200
|
0,093
|
160
|
2,6
|
1,1
|
220
|
2
|
3,6
|
1,4
|
630
|
13
|
10
|
4,1
|
970
|
31
|
16
|
6,4
|
4,2
|
1300
|
55
|
8,5
|
5,7
|
|
600х200
|
0,112
|
200
|
3,0
|
1,2
|
250
|
1
|
3,7
|
1,5
|
700
|
11
|
11
|
4,2
|
1100
|
27
|
16
|
6,6
|
4,4
|
1400
|
44
|
8,4
|
5,6
|
|
700х200
|
0,131
|
230
|
3,2
|
1,3
|
270
|
1
|
3,7
|
1,5
|
750
|
9
|
10
|
4,1
|
1220
|
25
|
17
|
6,7
|
4,5
|
1450
|
35
|
8,0
|
5,3
|
|
800х200
|
0,150
|
270
|
3,5
|
1,4
|
300
|
1
|
3,9
|
1,6
|
820
|
9
|
11
|
4,2
|
1340
|
23
|
17
|
6,9
|
4,6
|
1580
|
31
|
8,2
|
5,4
|
|
1000х200
|
0,188
|
340
|
3,9
|
1,6
|
350
|
1
|
4,1
|
1,6
|
950
|
7
|
11
|
4,4
|
1450
|
17
|
17
|
6,7
|
4,5
|
1700
|
23
|
7,8
|
5,2
|
|
300х300
|
0,084
|
150
|
2,6
|
1,0
|
200
|
2
|
3,4
|
1,4
|
550
|
12
|
9,5
|
3,8
|
850
|
29
|
15
|
5,9
|
3,9
|
1200
|
58
|
8,3
|
5,5
|
|
400х300
|
0,113
|
200
|
3
|
1,2
|
250
|
1
|
3,7
|
1,5
|
700
|
11
|
11
|
4,2
|
1100
|
27
|
16
|
6,6
|
4,4
|
1400
|
44
|
8,4
|
5,6
|
|
500х300
|
0,142
|
250
|
3,3
|
1,3
|
290
|
1
|
3,9
|
1,5
|
800
|
9
|
11
|
4,2
|
1280
|
23
|
17
|
6,8
|
4,5
|
1520
|
32
|
8,1
|
5,4
|
|
600х300
|
0,171
|
300
|
3,6
|
1,5
|
320
|
1
|
3,9
|
1,5
|
900
|
8
|
11
|
4,3
|
1400
|
19
|
17
|
6,8
|
4,5
|
1650
|
26
|
8,0
|
5,3
|
|
700х300
|
0,200
|
350
|
3,9
|
1,6
|
400
|
1
|
4,4
|
1,8
|
1000
|
7
|
11
|
4,5
|
1550
|
17
|
17
|
6,9
|
4,6
|
1900
|
25
|
8,5
|
5,7
|
|
800х300
|
0,229
|
400
|
4,2
|
1,7
|
500
|
1
|
5,3
|
2,1
|
1100
|
6
|
12
|
4,6
|
1700
|
16
|
18
|
7,1
|
4,7
|
2100
|
24
|
8,8
|
5,9
|
|
1000х300
|
0,287
|
500
|
4,6
|
1,9
|
600
|
1
|
5,6
|
2,2
|
1250
|
5
|
12
|
4,7
|
1900
|
12
|
18
|
7,1
|
4,7
|
2400
|
20
|
8,9
|
6,0
|
|
*Решетки других размеров и цветов поставляются под заказ.
|
| При настилании струи на потолок ее дальнобойность увеличивается в 1,4 раза. При установке регулятора расхода в решетках АМР данные таблицы корректируются: | Значение коэффициента К и ΔLWА для решеток АМР при α1=α2=45° |
 |
|
% открытия
|
100%
|
50%
|
30%
|
|
регулятора расхода
|
β=0°
|
β=30°
|
β=60°
|
|
K
|
1,2
|
1,8
|
2,5
|
|
ΔLwa, дБ(А)
|
0
|
5
|
7
|
|
Приведенные в таблице данные дальнобойности струи не учитывают принятую схему воздухораздачи и избыточную температуру воздуха в струе. Для определения температуры и скорости воздуха в рабочей зоне необходимо пользоваться указаниями по расчету воздухораспределителей.
Технические характеристики решеток АДН, АДР при установке в системах вытяжной вентиляции, (α1=α2=0°)
При удалении воздуха из помещения жалюзи решёток устанавливаются на угол α1=α2=0°. Ниже в таблице приведены рекомендуемые расходы воздуха Lо в зависимости от уровня генерируемого шума LA, соответствующие потери полного давления ∆Pполн. Всасываемый поток не оказывает влияния на параметры воздуха в обслуживаемой зоне, и его скорость не рассчитывается.
Данные для подбора воздуха решеток АДН, АДР при удалении воздуха из помещения, (α1=α2=0°)
(Таблица № 3 по марке)
| При установке регулятора расхода в решетках АМР данные таблицы корректируются: | Значение коэффициента К и ΔLWА для решеток АМР при α1=α2=0° |
 |
|
% открытия
|
100%
|
50%
|
30%
|
|
регулятора расхода
|
β=0°
|
β=30°
|
β=60°
|
|
K
|
1,2
|
3,7
|
7,3
|
|
ΔLwa, дБ(А)
|
2
|
5
|
7
|
|
Назад в раздел
|
|
|