(495) 648-65-81  (495) 290-33-79

ООО "ТПК СТРОЙСНАБ XXI ВЕК"
г.Москва, ул.Монтажная, д.7 стр.1
e-mail: info@arealconsult.ru

Каталог:


Прайс-лист на оборудование и материалы
Вентиляторы вытяжные
Вентиляторы промышленные
Вентиляторы радиальные
Вентиляторы канальные
Вентиляторы осевые
Вентиляторы крышные
Вентиляционные решетки
Воздушные клапаны
Отопительные агрегаты
Тепловые завесы
Тепловые пушки
Калориферы
Конвекторы
Приточные установки
Пылеулавители
Фильтры
Местные вентотсосы
Градирни
Электроприводы
Клапаны регулирования водяного потока
Воздуховоды
Шумоглушители
Виброизоляторы
Гермодвери
Оборудование Systemair
Оборудование Ostberg
Оборудование Rosenberg
Сварочные электроды
Выпрямители сварочные
Инверторы сварочные
Трансформаторы
Малые полуавтоматы для дуговой сварки
Комплектные полуавтоматы
Механизмы подачи
Комплектные автоматы для дуговой сварки
Источники для полуавтоматической сварки
Генераторы сварочные
Печи и термопеналы
Машины контактной сварки
Установки для аргонодуговой сварки
Горелки для аргонодуговой сварки
Горелки
Резаки
Комплекты (резак+горелка)
Вентили балонные
Редукторы балонные
Регуляторы расхода газа
Баллоны
Рукава
Генераторы ацетиленовые
Комплектующие
Машины газовой резки
Аксессуары и средства защиты
Сварочная проволока
Припой
Флюс
Сварочное оборудование > Каталог > Оборудование OSTBERG > Воздушные фильтры

Фильтры для круглых каналов ФЛФ

Фильтры для круглых каналов ФЛФ  

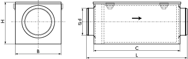
     Корпус и крышка фильтров изготовлены из оцинкованной стали. Крышка крепится к корпусу простыми защёлками. Корпус фильтра снабжён круглыми патрубками с резиновым уплотнением для подсоединения воздуховодов или компонентов вентиляционной системы. Фильтрующий материал выполнен в виде кассеты с мешочными фильтрами из синтетического волокна и имеет класс очистки EU3, EU5, EU7. На корпусе установлены патрубки для подключения манометрического датчика загрязнения фильтра   

Габаритные размеры, мм

 

Тип фильтра

Ød

В

H

С

L

Вес, кг

ФЛФ 100

100

210

170

430

530

7,1

ФЛФ 125

125

220

205

430

535

7,2

ФЛФ 160

160

270

235

450

555

7,3

ФЛФ 200

200

320

275

500

620

7,5

ФЛФ 250

25

370

325

560

680

9,0

ФЛФ 315

315

430

390

625

745

9,0

ФЛФ 400

400

520

495

635

765

15,0

Назад в раздел